Abstract
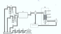
Catalytic oxidation of benzene, toluene, and ethylbenzene (BTE) on virgin zeolite, nZnO-coated zeolite, with and without UV + O3, at 300 °C bed temperature was investigated using laboratory experiments. The coating was done at three weight ratios of Zn (estimated Zn content in nZnO) to zeolite (0.2:1.0, 0.5:10, 1.0:1.0). The coated adsorbents were examined by scanning electron microscopy, wavelength dispersive X-ray spectroscopy, and Brunauer Emmett Teller analyses. In the catalytic oxidation experiments, the adsorbents were first saturated with BTE by purging an air stream containing a mixture of BTE at 5 ppm each for 28 min. Introduction of UV + O3 on the coated 13X zeolite (0.5:1.0) bed improved the average removal efficiency (RE) of benzene, toluene, and ethylbenzene (with inlet concentration of 5 ppm each) to 68.7, 90.0, and 99.6%, respectively, from the corresponding values of 57.3, 79.9, and 98.5% when no UV + O3 was used. An increase in the coating weight ratio from 0.2:1.0 to 0.5:1.0 had produced a higher RE for benzene only, while a further increase to 1.0:1.0 witnessed a decrease in RE for all three compounds, and more for benzene. Avg RE of BTE decreased with the increase in their inlet concentrations, more significantly for an increase from 5 to 50 ppm and less noticeable for a further increase to 100 ppm. The final oxidation products and intermediate products in the outlet streams from the oxidation and thermal desorption were analyzed which showed predominant compositions of CO2 followed by BTE and some levels of CO and other volatile organic compounds.





Similar content being viewed by others
Explore related subjects
Discover the latest articles and news from researchers in related subjects, suggested using machine learning.References
Alibaba. (2015). Products. Retrieved from http://www.alibaba.com/showroom. Accessed January 2015 from US EPA website.
Allen, J. (2002). Earth observatory: Chemistry in the sunlight: Chemistry of ozone formation. Retrieved from http://earthobservatory.nasa.gov/Features/ChemistrySunlight/chemistry_sunlight3.php. Accessed June 2012.
Anandan, S., Vinu, A., Vienkatachalam, N., Arabindoo, B., & Murugesan, V. (2006). Photocatalytic activity of ZnO impregnated Hβ and mechanical mix of ZnO/Hβin the degradation of monocrotophos in aqueous solution. 256(1–2), 9.
Arik, I. C., Denayer, J. F., & Baron, G. V. (2003). High-temperature adsorption of n-alkanes on ZSM-5 zeolites: Influence of the Si/Al ratio and the synthesis method on the low-coverage adsorption properties. Microporous and Mesoporous Materials, 60(1), 111–124. https://doi.org/10.1016/S1387-1811(03)00332-9.
Barreca, D., Gasparotto, A., Maccato, C., Tondello, E., Štangar, U. L., & Patil, S. R. (2009). Photoinduced superhydrophilicity and photocatalytic properties of ZnO nanoplatelets. Surface and Coatings Technology, 203(14), 2041–2045. https://doi.org/10.1016/j.surfcoat.2009.02.002.
Beauchet, R., Magnoux, P., & Mijoin, J. (2007). Catalytic oxidation of volatile organic compounds (VOCs) mixture (isopropanol/o-xylene) on zeolite catalysts. Catalysis Today, 124(3), 118–123. https://doi.org/10.1016/j.cattod.2007.03.030.
Chang, F.-W., Lai, S.-C., & Roselin, L. S. (2008). Hydrogen production by partial oxidation of methanol over ZnO-promoted Au/Al2O3 catalysts. Journal of Molecular Catalysis A: Chemical, 282(1), 129–135. https://doi.org/10.1016/j.molcata.2007.12.002.
Changsuphan, A., & Kim Oanh, N. T. (2012). VOC emission and control: Case study with application of nanometallic particles coated on porous materials for VOC elimination in contaminated air. In N. T. Kim Oanh (Ed.), Integrated Air Quality Management: Asian Case Studies (p. 424). Abingdon: Taylor & Francis Group.
Changsuphan, A., Wahab, M. I. B. A., & Kim Oanh, N. T. (2012). Removal of benzene by ZnO nanoparticles coated on porous adsorbents in presence of ozone and UV. Chemical Engineering Journal, 181, 215–221. https://doi.org/10.1016/j.cej.2011.11.064.
Chen, J.-C., & Tang, C.-T. (2007). Preparation and application of granular ZnO/Al2O3 catalyst for the removal of hazardous trichloroethylene. Journal of Hazardous Materials, 142(1), 88–96. https://doi.org/10.1016/j.jhazmat.2006.07.061.
EPA, U. (2012). An Introduction to Indoor Air Quality Organic Gases (Volatile Organic Compounds - VOCs. Retrieved from http://www.epa.gov/iaq/voc.html. Accessed June 2012.
He, C., Li, P., Cheng, J., Hao, Z.-P., & Xu, Z.-P. (2010). A comprehensive study of deep catalytic oxidation of benzene, toluene, ethyl acetate, and their mixtures over Pd/ZSM-5 catalyst: Mutual effects and kinetics. Water, Air, & Soil Pollution, 209(1), 365–376. https://doi.org/10.1007/s11270-009-0205-7.
Hernández-Alonso, M. a. D., Hungría, A. B., Martínez-Arias, A., Fernández-García, M., Coronado, J. M., Conesa, J. C., & Soria, J. (2004). EPR study of the photoassisted formation of radicals on CeO2 nanoparticles employed for toluene photooxidation. Applied Catalysis B: Environmental, 50(3), 167–175. https://doi.org/10.1016/j.apcatb.2004.01.016.
Kalpana, D., Omkumar, K. S., Kumar, S. S., & Renganathan, N. G. (2006). A novel high power symmetric ZnO/carbon aerogel composite electrode for electrochemical supercapacitor. Electrochimica Acta, 52(3), 1309–1315. https://doi.org/10.1016/j.electacta.2006.07.032.
Kim Oanh, N. T., & Kiatphuangchai, K. (2012). Chapter 8: Development of air cleaning device using chemically impregnated activated carbon for interior vehicles application. In N. T. Kim Oanh (Ed.), Integrated air quality management: Asian Case Studies (p. 424). Abingdon: Taylor & Francis Group.
Lee, A., Xiao, G., Xiao, P., Joshi, K., Singh, R., & Webley, P. A. (2011). High temperature adsorption materials and their performance for pre-combustion capture of carbon dioxide. Energy Procedia, 4, 1199–1206.
Li L., Fan M-H. , Brown R. C. , van Leeuwen J. H. , Wang J-J. , Wang W-H. , Song Y-H. & Zhang P-Y. (2006) Synthesis, properties, and environmental applications of nanoscale iron-based materials: A review, Critical Reviews in Environmental Science and Technology, 36:5, 405–431. DOI: https://doi.org/10.1080/10643380600620387.
Li, P., Gianluca, B., Awang, K., Duduku, C., & Joseph, G. (2008). Preparation of titanium dioxide photocatalyst loaded onto activated carbon support using chemical vapor deposition: A review paper. Journal of Hazardous Materials, 157(2), 209–219. https://doi.org/10.1016/j.jhazmat.2008.01.040.
Magee, H. (2006). Nitrogen gas adsorption in zeolites 13X and 5A. Fermi national accelerator laboratory. Retrieved from lartpc-docdb.fnal.gov/.../zeolite_molecular_sieve.pdf. Accessed July 2012.
Mahalakshmi, M., Vishnu Priya, S., Arabindoo, B., Palanichamy, M., & Murugesan, V. (2009). Photocatalytic degradation of aqueous propoxur solution using TiO2 and Hβ zeolite-supported TiO2. Journal of Hazardous Materials, 161(1), 336–343. https://doi.org/10.1016/j.jhazmat.2008.03.098.
Ménesi, J., Körösi, L., Bazsó, É., Zöllmer, V., Richardt, A., & Dékány, I. (2008). Photocatalytic oxidation of organic pollutants on titania–clay composites. Chemosphere, 70(3), 538–542. https://doi.org/10.1016/j.chemosphere.2007.06.049.
Pengyi, Z., Fuyan, L., Gang, Y., Qing, C., & Wanpeng, Z. (2003). A comparative study on decomposition of gaseous toluene by O3/UV, TiO2/UV and O3/TiO2/UV. Journal of Photochemistry and Photobiology A: Chemistry, 156(1), 189–194. https://doi.org/10.1016/S1010-6030(02)00432-X.
Rakness, K., Gordon, G., Langlais, B., Masschelein, W., Matsumoto, N., Richard, Y., Robson, C. M., & Somiya, I. (1996). Guideline for measurement of ozone concentration in the process gas from an ozone generator. Ozone: Science & Engineering, 18(3), 209–229. https://doi.org/10.1080/01919519608547327.
Ras, M. R., Marcé, R. M., & Borrull, F. (2009). Characterization of ozone precursor volatile organic compounds in urban atmospheres and around the petrochemical industry in the Tarragona region. Science of the Total Environment, 407(14), 4312–4319. https://doi.org/10.1016/j.scitotenv.2009.04.001.
Royal-Society (2008). Ground-Level Ozone in the 21st Century: Future Trends, Impacts and Policy Implications. Science Policy Report 15/08.( ISBN: 9780854037131).
Shen, Y.-S., & Ku, Y. (1999). Treatment of gas-phase volatile organic compounds (VOCs) by the UVO3 process. Chemosphere, 38(8), 1855–1866. https://doi.org/10.1016/S0045-6535(98)00400-7.
Shindell, D., Kuylenstierna, J. C. I., Vignati, E., van Dingenen, R., Amann, M., Klimont, Z., Anenberg, S. C., Muller, N., Janssens-Maenhout, G., Raes, F., Schwartz, J., Faluvegi, G., Pozzoli, L., Kupiainen, K., Höglund-Isaksson, L., Emberson, L., Streets, D., Ramanathan, V., Hicks, K., Oanh, N. T. K., Milly, G., Williams, M., Demkine, V., & Fowler, D. (2012). Simultaneously mitigating near-term climate change and improving human health and food security. Science, 335(6065), 183–189. https://doi.org/10.1126/science.1210026.
Sigma-Aldrich. (2015). Thailand home: Product directory: Material science: Metal and ceramic science: Oxides. Retrieved from http://www.sigmaaldrich.com/materials-science/material-science-products.html?TablePage=19922558. Accessed January 2015.
Sobana, N., Muruganandam, M., & Swaminathan, M. (2008). Characterization of AC–ZnO catalyst and its photocatalytic activity on 4-acetylphenol degradation. Catalysis Communications, 9(2), 262–268. https://doi.org/10.1016/j.catcom.2007.04.040.
Su, F., Lu, C., & Hu, S. (2010). Adsorption of benzene, toluene, ethylbenzene and p-xylene by NaOCl-oxidized carbon nanotubes. Colloids and Surfaces A: Physicochemical and Engineering Aspects, 353(1), 83–91. https://doi.org/10.1016/j.colsurfa.2009.10.025.
Wang, S., Ang, H. M., & Tade, M. O. (2007). Volatile organic compounds in indoor environment and photocatalytic oxidation: State of the art. Environment International, 33(5), 694–705. https://doi.org/10.1016/j.envint.2007.02.011.
Wark, M., Kessler, H., & Schulz-Ekloff, G. (1997). Growth and reactivity of zinc and cadmium oxide nano-particles in zeolites. Microporous Materials, 8(5), 241–253. https://doi.org/10.1016/S0927-6513(96)00083-1.
Wu, L.-P., Li, X.-J., Yuan, Z.-H., & Chen, Y. (2009). The fabrication of TiO2-supported zeolite with core/shell heterostructure for ethanol dehydration to ethylene. Catalysis Communications, 11(1), 67–70. https://doi.org/10.1016/j.catcom.2009.08.013.
Wu, H., Wang, L., Zhang, J., Shen, Z., & Zhao, J. (2011). Catalytic oxidation of benzene, toluene and p-xylene over colloidal gold supported on zinc oxide catalyst. Catalysis Communications, 12(10), 859–865. https://doi.org/10.1016/j.catcom.2011.02.012.
Zhan, B.-Z., Modén, B., Dakka, J., Santiesteban, J. G., & Iglesia, E. (2007). Catalytic oxidation of n-hexane on Mn-exchanged zeolites: Turnover rates, regioselectivity, and spatial constraints. Journal of Catalysis, 245(2), 316–325. https://doi.org/10.1016/j.jcat.2006.10.019.
Acknowledgements
We would like to thank the collaborators in DSS for supporting the FTIR and WDX analysis. NSTDA support in the SEM and TISTR support in BET analysis are dully acknowledged. The scholarship support from the government of Thailand to the first author to pursue his PhD study at the Asian Institute of Technology is fully acknowledged.
Author information
Authors and Affiliations
Corresponding author
Rights and permissions
About this article
Cite this article
Changsuphan, A., Kim Oanh, N.T. Catalytic Oxidation of Volatile Organic Compounds by 13X Zeolite Coated with nZnO in Presence of UV and Ozone at High Bed Temperature. Water Air Soil Pollut 229, 201 (2018). https://doi.org/10.1007/s11270-018-3848-4
Received:
Accepted:
Published:
DOI: https://doi.org/10.1007/s11270-018-3848-4


